Home
Institutional
Institutional
About Us
News
Certificates
E-Katalog
Modular Buildings
Modular Buildings
Camps
Offices
Accommodation Units
Kitchens & Dining Halls
Schools
Hospitals
Hotels
Military Buildings
Commercial Buildings
Facilities
Canteens & Cafeterias
Toilets & Showers
Containers
Containers
Flat Pack Containers
Container Offices
Construction Containers
Container Homes
Toilet and Shower Containers
Modern Guard Containers
Container Shops
Portable Cabins
Portable Buildings
Portable Buildings
Modular Kiosks
Prefabricated Shelters
Mobile Toilet & Showers
Chemical Toilets
Bulletproof Cabin
Guard Houses
Security Huts
Security Guard Booths
Homes
Homes
Prefab Homes
Steel Homes
Container Homes
Tiny Houses
Low Cost Social Housing
Affordable Mass Housing
Portable Temporary Housing
Disaster Proof Homes
Solutions
Projects
Contact
+90 539 635 89 38
info@karmod.com
Home
Products
42 m² Container Home
Go Back
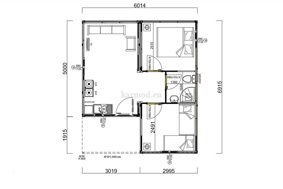
42 m² Container Home
Bedroom
7,5 m²
Bedroom
7,5 m²
Saloon
15 m²
Toilet Shower
2,5 m²
Hall
2,5 m²
Currently 82 guests are viewing this product
Get Price
Call Us
Detail
Most Viewed
Containers
42m² Container Clinic
Get Price
Detail
Containers
41 m² Container Office
Get Price
Detail
Containers
135 m² Container Clinic
Get Price
Detail
Containers
41 m² Container Office
Get Price
Detail
Containers
21 m² Container Home
Get Price
Detail
Containers
35 m² Container Home
Get Price
Detail
Now call
In order to offer you a better service, your questions and details about your theoretical and special architectural plans, projects and product specifications that you email to info@karmod.com will be answered as soon as possible.
-- Country --
{{item.Country}}
I have read the KVK text about my personal data that I provided in the contact form. I expressly agree to the processing of the personal data I have provided.
Submit
Whatsapp
Call Us
Email