Prefabricated homes, or prefab homes, are residences constructed off-site, often in factories, before being transported to their final location. Offering a plethora of choices from luxury modern prefab homes to more affordable housing options, they accommodate different tastes and budgets. These dwellings can be designed as single storey prefab houses or double storey prefab houses, showcasing the flexibility in design and function.

Prefab homes come in various models and styles, including ultra modern prefab homes, portable houses, and even prefab multi-family homes. Below, a few of these models are listed.
The design of prefab homes is not limited to the exterior. Modern prefabricated houses extend their style to the prefab home inside, creating cohesive and stunning prefab homes interiors. From a compact tiny house design to sprawling multi-family prefab homes, these residences prove that style and function can co-exist in prefab buildings.
When considering the world of prefab housing, a vast range of options is available. One can find everything from compact, minimalist designs to larger, more luxurious dwellings. Yet, certain standout concepts have arisen within this field.
A unique trend in this sector is the development of homes constructed primarily from steel. These dwellings provide a distinct set of benefits, offering an impressive level of strength and durability. The flexibility of steel as a material also allows for innovative, open-plan layouts and the integration of large, expansive windows. Designed to weather the toughest of conditions, these homes are an ideal choice for areas prone to harsh climates.

Beyond traditional housing, the prefabricated sector also encompasses a range of larger structures. These might be commercial spaces, offices, or even entire apartment blocks. Regardless of the intended use, these buildings share a common set of values: efficiency, cost-effectiveness, and a high degree of customization. Often these structures incorporate modular elements, allowing for flexibility in their design and an ability to cater to a variety of different needs.
In conclusion, whether your choice is a steel house or a larger prefab building, the prefab market offers myriad options. Each comes with its unique advantages and the opportunity for efficient, customizable, and sustainable construction.
When evaluating the cost of prefabricated houses, it's essential to consider a variety of factors including design, size, and material. Karmod, a prominent provider in this industry, offers numerous types of prefabricated homes, each with their unique price points.
One type of offering from Karmod is the modular homes. Assembled in separate units onsite, these homes give buyers a unique blend of flexibility and style. The cost of these homes is dictated by several variables, such as the number of modules, their types, and any additional customizations.

Karmod also brings an innovative and sustainable approach to housing through container homes. These homes repurpose shipping containers into functional, comfortable living spaces.
With Karmod, the price of their prefabricated homes encompasses the structure itself, the interior fittings, and the basic utilities. To get a specific cost estimate, it's advisable to contact Karmod directly with your individual needs and preferences.
Prefabricated homes, also known as prefab homes, are a key part of Karmod's mission to bring modern, affordable, and sustainable housing to the market. This is reflected in their wide range of prefabricated house projects that encompass various styles and purposes.
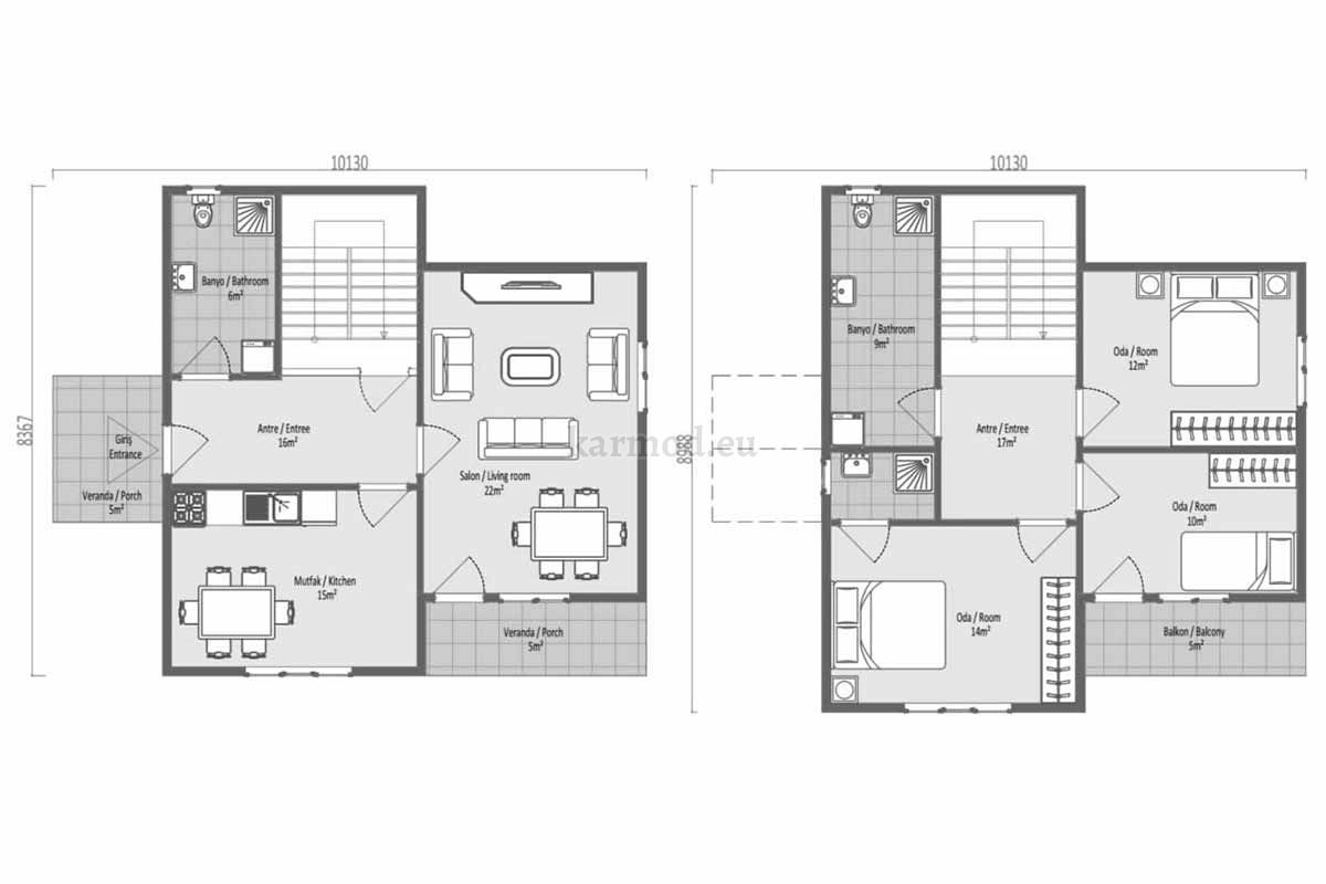
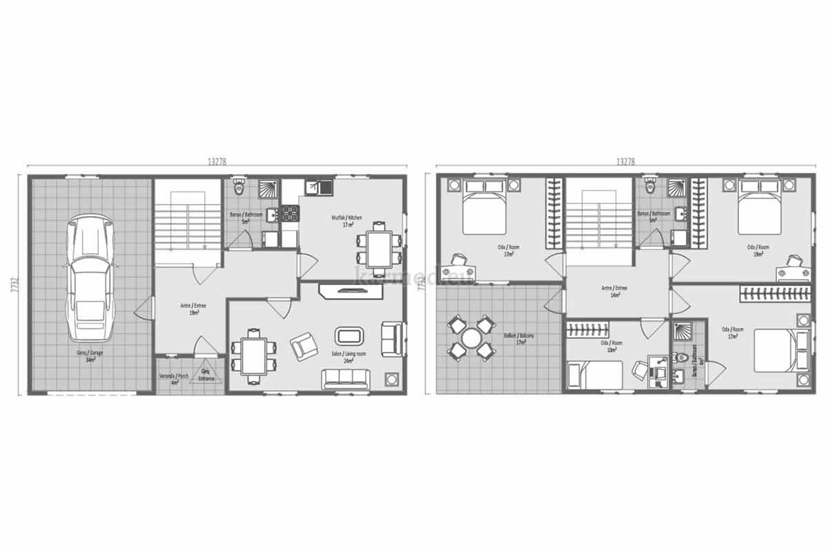
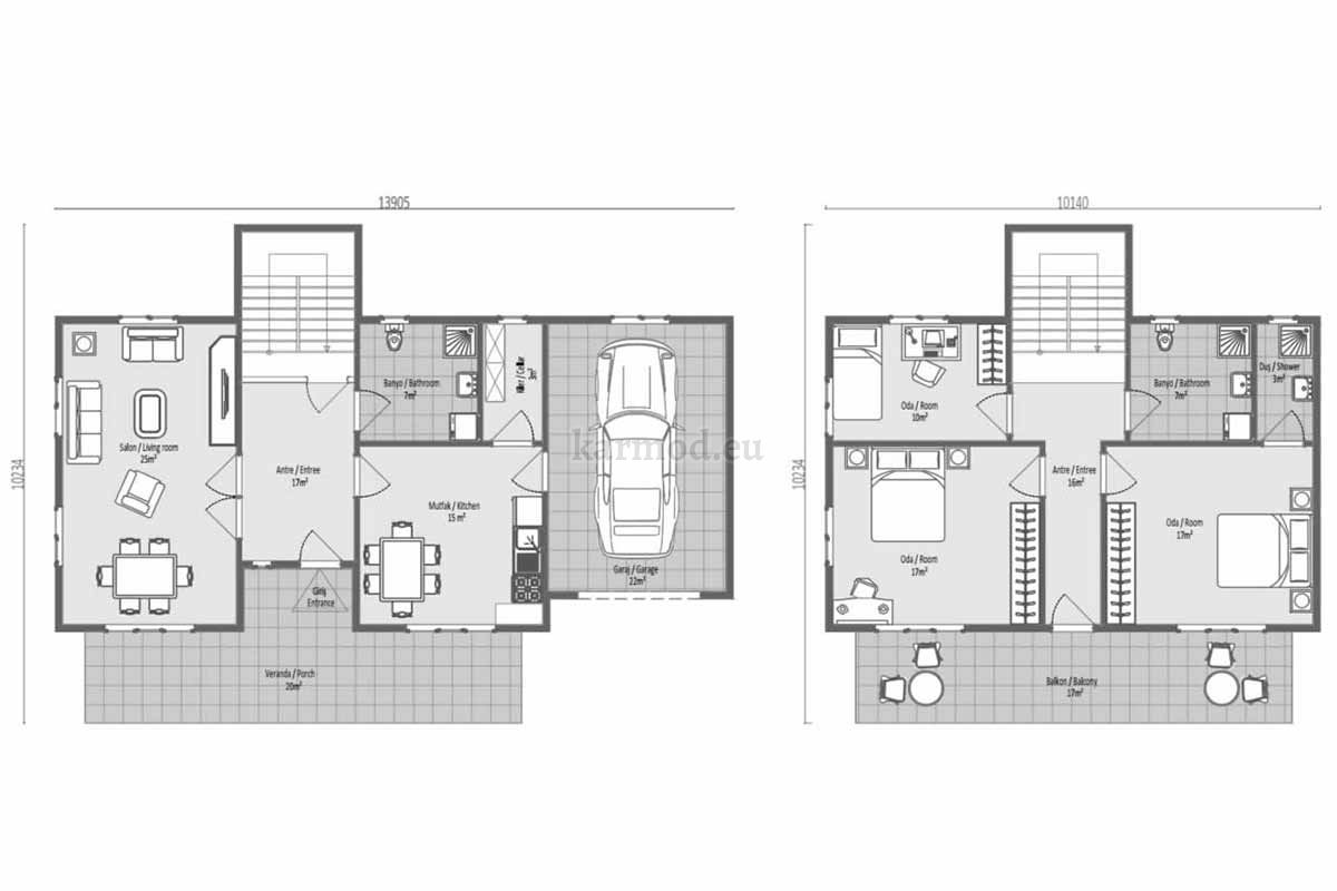
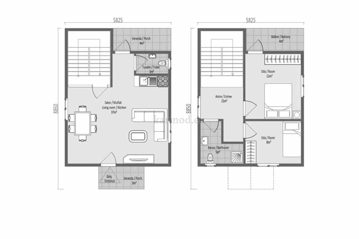
Their projects include ultra-modern prefab homes that are designed with the latest architectural trends in mind. These luxury modern prefab homes stand out with their sleek designs, sophisticated interiors, and top-notch build quality. Available in both single storey and double storey models, these homes offer flexible options that cater to different needs.
Additionally, Karmod is dedicated to addressing the affordable housing crisis through their prefabricated social housing projects. These prefab houses, while being cost-effective, do not compromise on quality and comfort, making them an ideal solution for housing initiatives.

Karmod understands that every family is unique, and their requirements for a home can greatly differ. With this understanding, Karmod offers a diverse selection of prefab homes designed specifically for families.
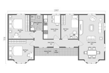
For smaller families or those desiring a compact lifestyle, the single storey prefab houses could be a perfect fit. These homes are designed to maximize living space while ensuring comfort and functionality. On the other hand, the double storey prefab houses provide more room and privacy, making them suitable for larger families.

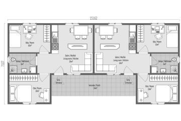
Moreover, for families looking at housing as an investment, Karmod's multi-family prefab homes offer an excellent opportunity. These homes are designed to house multiple families or tenants, with each unit providing adequate privacy and living space.
In today's world, the importance of sustainable living can't be understated. Recognizing this, Karmod offers eco prefabricated homes that are designed to be environmentally friendly.

Among their offerings are the innovative container homes. Made by repurposing shipping containers, these homes are a testament to Karmod's commitment to sustainability. Not only do they make use of recycled materials, but their compact design also encourages efficient use of space.
All of Karmod's homes, from their luxury prefabs to their eco homes, are characterized by their high quality, modern design, and affordability. To explore the range of prefabricated homes for sale, potential buyers are encouraged to reach out to Karmod to find the perfect prefab house that suits their needs and preferences.
Prefabricated housing has emerged as a modern option, bringing in a new era of efficiency, sustainability, and innovation in building. The technique of prefabrication, which involves manufacturing building components off-site and putting them together on-site, has transformed residential construction techniques.

Prefabricated homes are significantly more efficient than conventional construction techniques. Construction schedules are sped up, material waste is reduced, and environmental effects are minimized by permitting simultaneous work on several components of a structure. Precision and uniformity in module manufacture are ensured by cutting-edge technologies including 3D printing, CNC machining, and robots.
The sustainability of modern prefab systems is a crucial characteristic. Many of these homes are built with environmentally friendly materials and energy-saving equipment, minimizing their carbon footprint throughout their entire lifespan. Controlled off-site production improves quality control by lowering the possibility of flaws that can require expensive repairs.

Prefab housing is a thriving area of innovation as architects and designers push the limits to create distinctive and practical living areas. Options for customization range from flexible modular layouts to cutting-edge designs that challenge conventional aesthetics. This flexibility accommodates a variety of lifestyles while maintaining the intrinsic efficiency of prefabrication.
Housing issues are also addressed by prefabricated homes, both in rural and urban areas. Prefab buildings may be quickly put together in areas with a high density of people, where space is at its limit and construction disturbances are undesirable, offering timely solutions to housing shortages. Prefab homes provide a realistic alternative that combines quality and speed in remote areas with limited access to resources and labor.

In conclusion, prefabricated housing is revolutionizing the sectors of architecture and construction thanks to new solutions. Prefab houses are altering urban and rural environments while addressing modern concerns through effective construction, environmental methods, and inventive designs. The prefab revolution is likely to continue to revolutionize how we design, construct, and inhabit living spaces as technology develops and creativity soars.
While second-hand or used prefab houses might seem like a cost-effective option, there are several disadvantages to consider before diving into the pre-loved market.
In conclusion, while used prefab homes may seem like an affordable choice initially, they come with several potential disadvantages. On the other hand, purchasing a new, modern prefabricated house from a reputable company like Karmod offers peace of mind with guaranteed quality, latest designs, and an opportunity for customization. To understand the true price of prefabricated homes, considering both upfront and long-term costs, it's recommended to check out the latest Karmod houses prices and compare them to the alternatives.