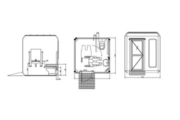
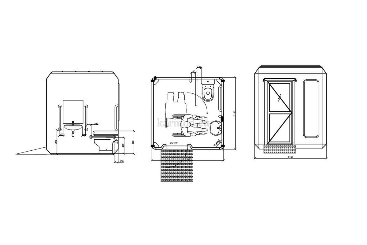
Wheelchair Mobile Toilet 215 x 215 cm

  • Height 245 cm
  • Width 215 cm
  • Length 215 cm
  • Weight 540 kg
Currently 74 guests are viewing this product
Call Us

Wheelchair Access Portable Toilet Unit

This spacious, wheelchair accessible portable is easy to transport and definitely gives users room to maneuver. Our Wheelchair Accessible Portable Disabled Toilets are larger than standard toilets and have space for a wheelchair. Our wheelchair accessible portable toilets are designed to allow independent use when using a standard sized wheelchair and self-transfer from the wheelchair to the toilet with the aid of a handrail attached to the two walls. Hand sanitizer, toilet paper and hand towel dispensers are positioned to provide ease of use. This easily accessible mobile  toilet unit is designed for comfort and convenience for individuals who need larger toilet facilities. Karmod handicapped portable toilet is equipped with a hand pump as standard. Karmod portable disabled toilet does not require mains drainage or electricity.

Portable Toilets for the Disabled

There are many reasons why a public disabled toilet might be needed for a festival, marathons or other sporting events, weddings, construction sites or anything else. Whatever the occasion, whatever their age, medical condition or disability, you need appropriate facilities for guests, visitors, staff and everyone in between to relax. Almost everyone has to go to one point or another during events, and that doesn't change because of a barrier, the only thing that changes is where their toilets are and how they're designed. Providing something for everyone is nothing more than general courtesy.

Most importantly, with the enactment of the Equality Act in 2010, it became illegal for service providers to fail to adequately facilitate any disability by citing discrimination and unfair treatment. A person with a disability is still a person and should be treated as such; It is unacceptable to fail to provide them with this basic comfort. This is the law; Don't get caught for a carelessness. Claiming expenses as a reason for not getting some isn't going to look great in court.

Wheelchair Accessible Portable toilets

This is a difficult question to answer as it depends on what the event is and where it is located. If the event is located in one type of building, common practice is one per floor. If it's a festival, wedding, or other ground floor event, you should be looking at about two disabled toilets for every hundred people. The truth is that someone with a movement disorder may take longer to use the facilities than others, and you need to adapt to that by making sure there is an alternative option available.