Home
Institutional
Institutional
About Us
News
Certificates
E-Katalog
Modular Buildings
Modular Buildings
Camps
Offices
Accommodation Units
Kitchens & Dining Halls
Schools
Hospitals
Hotels
Military Buildings
Commercial Buildings
Facilities
Canteens & Cafeterias
Toilets & Showers
Containers
Containers
Flat Pack Containers
Container Offices
Construction Containers
Container Homes
Toilet and Shower Containers
Modern Guard Containers
Container Shops
Portable Cabins
Portable Buildings
Portable Buildings
Modular Kiosks
Prefabricated Shelters
Mobile Toilet & Showers
Chemical Toilets
Bulletproof Cabin
Guard Houses
Security Huts
Security Guard Booths
Homes
Homes
Prefab Homes
Steel Homes
Container Homes
Tiny Houses
Low Cost Social Housing
Affordable Mass Housing
Portable Temporary Housing
Disaster Proof Homes
Solutions
Projects
Contact
+90 539 635 89 38
info@karmod.com
Home
Products
Emergency Refugee Shelter
Go Back
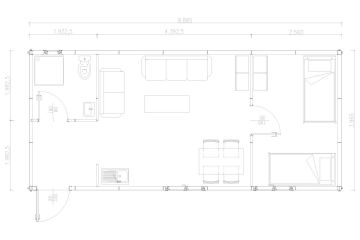
Emergency Refugee Shelter
35 m²
Bedroom
9.145 m²
Bathroom
3,376 m²
Living Room
16.311 m²
Hall
3.339 m²
Lenght
8.885 m
Width
3.965 m
Height
2.500 m
Total Square Meter
35 m²
Currently 91 guests are viewing this product
Get Price
Call Us
Detail
Most Viewed
Disaster Proof Homes
2 Room Refugee House
Get Price
Detail
Disaster Proof Homes
Emergency Refugee Shelter
Get Price
Detail
Disaster Proof Homes
Double Refugee House
Get Price
Detail
Disaster Proof Homes
Quad Refugee House
Get Price
Detail
Disaster Proof Homes
Octet Refugee House
Get Price
Detail
Now call
In order to offer you a better service, your questions and details about your theoretical and special architectural plans, projects and product specifications that you email to info@karmod.com will be answered as soon as possible.
-- Country --
{{item.Country}}
I have read the KVK text about my personal data that I provided in the contact form. I expressly agree to the processing of the personal data I have provided.
Submit
Whatsapp
Call Us
Email